金楽寺町2丁目車庫付・倉庫・事務所!
尼崎市金楽寺町2丁目23-3
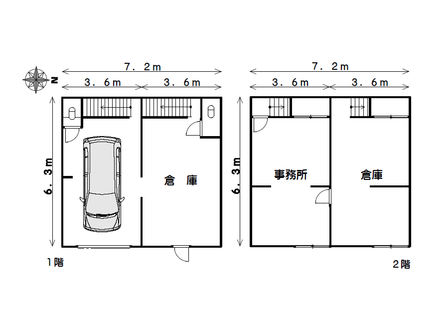
駐車場付き貸倉庫物件、2階には事務所スペース有り!
シャッター高は約2.2m!
近隣にはスーパー、コンビニ、ドラッグストアがあり利便性も抜群です!
詳細はお問い合わせください!
物件概要
- 種別
- 貸倉庫・事務所
- 月額賃料
- 99,000円(税込)
- 敷金
- 1ヶ月
- 礼金
- 2ヶ月
- 1階面積
- 45.36㎡
- 2階面積
- 45.36㎡
- 合計面積
- 90.72㎡(約27.44坪)
- 建物構造
- 木造
- 築年月
- 不詳
- 階数
- 2階建
- 接道状況
- 東側 公道に接道
- 現況
- 空き
- 引渡
- 相談
- 契約期間
- 2年
- 設備
- 電気・上下水道
- 火災保険
- 加入要
- 賃貸保証会社
- 加入要
- 注意事項
- ※資料と現況が異なる場合は現況を優先します。
- 取引態様
- 仲介
- 物件担当
- 前田 裕太郎
アクセス
- 所在地
- 尼崎市金楽寺町2丁目23-3
- 交通
- JR東海道本線 尼崎駅 徒歩約14分