出屋敷駅徒歩10分、尼崎三和本通商店街近くの居抜き物件!
尼崎市昭和南通7丁目187-2
阪神「出屋敷駅」徒歩約10分の好立地!
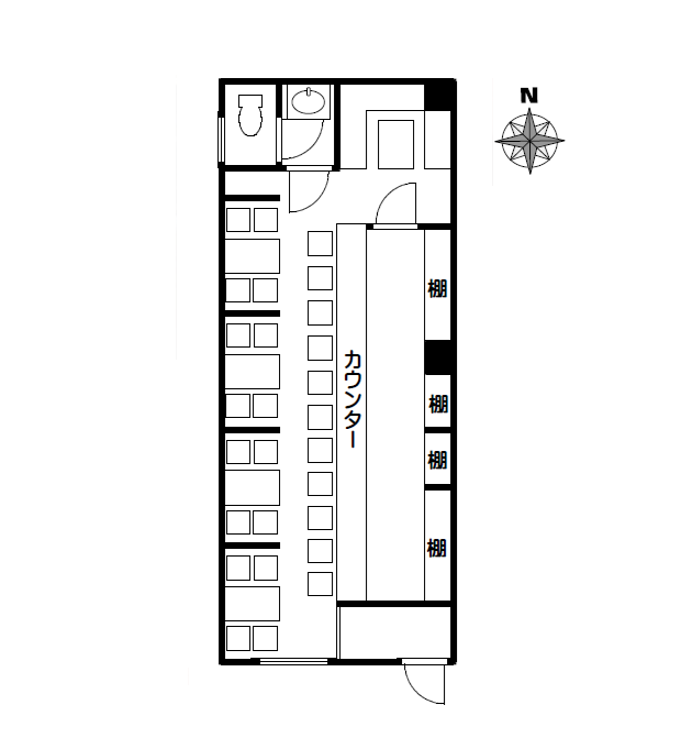
喫茶店の居抜き物件でカウンターはもちろんテーブルや椅子もありすぐに営業可能です!
負担の少ない初期費用と賃料設定でこれから飲食店開業を検討中の方にもおすすめ!
近隣には尼崎三和商店街をはじめ、スーパー、コンビニ、ドラッグストアなどがあり利便性も抜群です!
詳細はお問い合わせください!
物件概要
- 種別
- 貸店舗・事務所
- 月額賃料
- 110,000円(税込)
- 敷金
- 110,000円
- 礼金
- 220,000円
- 使用面積
- 32.72㎡(約9.8坪)
- 建物構造
- RC造
- 築年月
- 1979年6月(築46年)
- 階数
- 6階建/1階西側部分
- 駐車場
- 無し
- 現況
- 空き
- 引渡
- 相談
- 契約期間
- 2年
- 設備
- 電気・ガス・上下水道・トイレ・シャッター
- 備考
- 喫茶店居抜き
- 火災保険
- 加入要
- 賃貸保証会社
- 加入要
- 注意事項
- ※資料と現況が異なる場合は現況を優先します。
- 取引態様
- 仲介
- 物件担当
- 前田 裕太郎
アクセス
- 所在地
- 尼崎市昭和南通7丁目187-2
- 交通
- 阪神本線 出屋敷駅 徒歩約10分